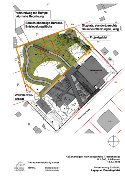
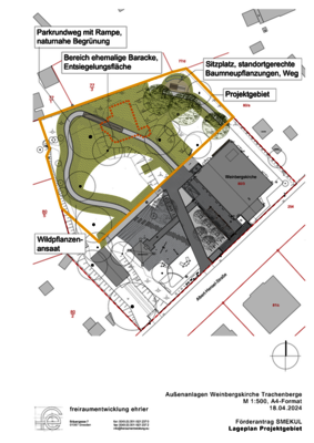
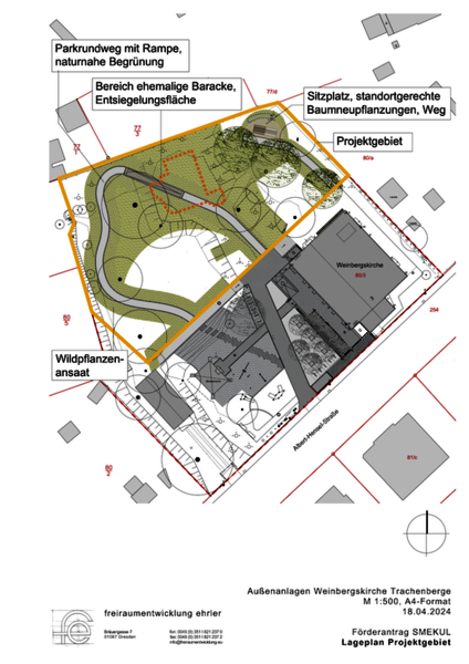
Am Mittwoch, dem 14. August 2024, wird um 13 Uhr der Fördermittelbescheid für das vom Sächsischen Staatsministerium für Energie, Klimaschutz, Umwelt und Landwirtschaft (SMEKUL) geförderte Vorhaben "Entsiegelung und standortgerechte Neubegrünung auf dem Gelände der Weinbergskirche Dresden-Trachenberge" durch Staatsminister Wolfram Günther an die Gemeinde überreicht. Interessierte Gemeindeglieder sind herzlich eingeladen.
Die Weinbergskirche Dresden-Trachenberge wurde 1954 bis 1958 erbaut und im Jahr 2014 u.a. mit Fördermitteln der Europäischen Union (EFRE) vollständig energetisch saniert. Mit einer auf Abwasserwärme basierenden Heizung, Fotovoltaikanlagen (seit 2002), Dämmung und Lüftungsanlage werden heute mehr als 75 % des Wärmebedarfes aus regenerativen Quellen gedeckt. Seit dem Jahr 2008 wird die Weinbergskirche erweitert und multifunktional genutzt, d.h. neben Gottesdiensten u.ä. finden mindestens monatlich kulturelle Veranstaltungen wie Konzerte, Filmabende oder auch Lesungen statt. Diese organisiert vor allem der Verein „KulturKirche Weinberg Dresden-Trachenberge e.V.“. Auf diese Weise stellt die Kirche heute einen kulturellen Ankerpunkt für Anwohnerinnen und Anwohner des Stadtteiles dar.
Das Projekt wurde bisher maßgeblich von der Landeshauptstadt Dresden (Amt für Stadtgrün und Abfallwirtschaft) und dem Stadtbezirksbeirat Dresden-Pieschen unterstützt. Die Mitglieder des Stadtbezirksbeirates haben sowohl die Voruntersuchung mit Beteiligung der Öffentlichkeit als auch die Planung mit Finanzmitteln von ca. 35.000 EUR unterstützt und fördern auch einen Teil der jetzt geplanten und nicht förderfähigen Arbeiten mit ca. 20.000 EUR.
Wir freuen uns sehr, dass wir mit der Förderung einen ersten Teil der geplanten Maßnahmen umsetzen können und hoffen, dass dies eine Initialzündung für die weiteren Maßnahmen darstellen kann. Trotz der Fördermittel müssen wir als Laurentiuskirchgemeinde auch Eigenmittel in Höhe von mindestens 15.000 EUR aufbringen, wofür wir auch auf Ihre Unterstützung angewiesen sind. Gern können Sie für Ihre Spenden unsere Bankverbindung nutzen:
KD-Bank (LKG Sachsen)
IBAN: DE06 3506 0190 1667 2090 28
BIC: GENO DE D1 DKD
Verwendungszweck: RT 1002/Außengelände Weinbergskirche
